келди на волне

крытая волна для сёрфинга

городская кофейня


Входная группа

Интерьер


Панорама. Двигайте мышью для управления. Двойной клик для увеличения.

3Д вид планировочного решения

Волна келди. Архитектурно-дизайнерское бюро ROOMS

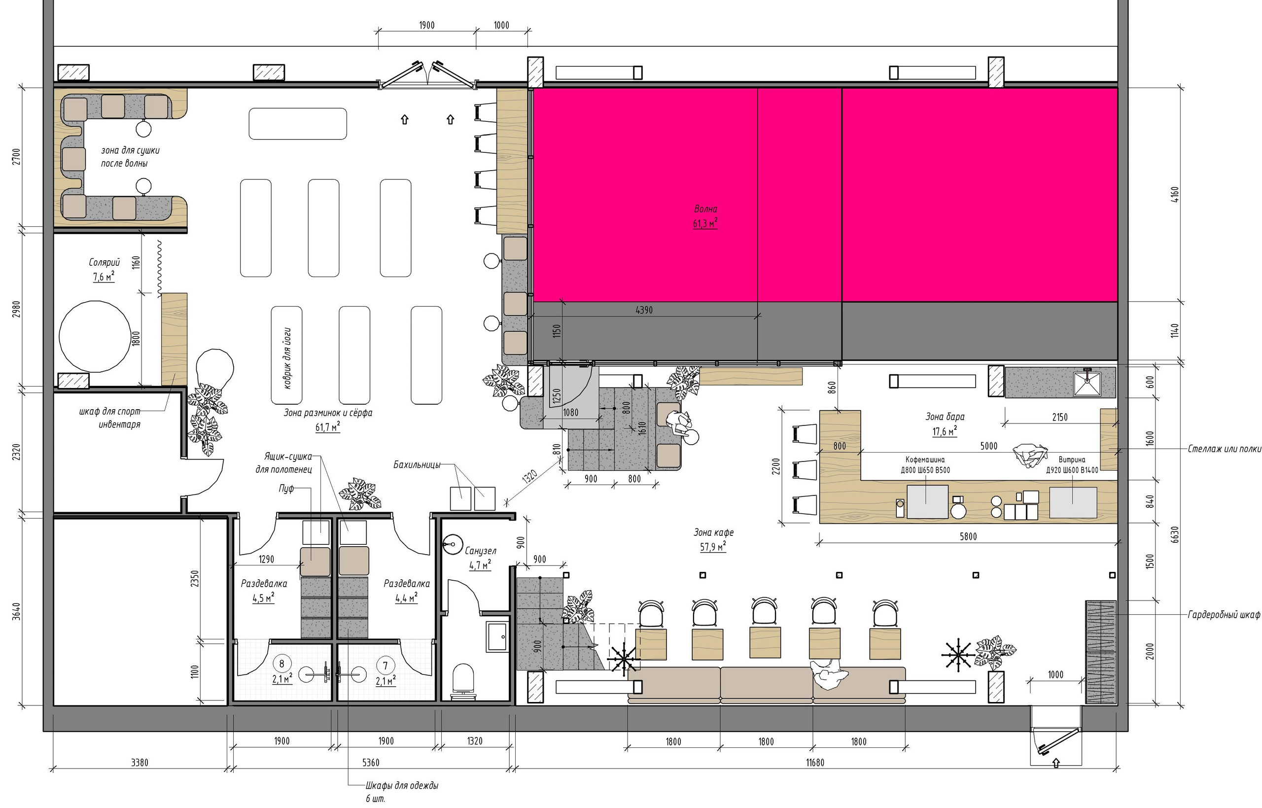
Планировочное решение

Планировочное решение антресоли

3Д вид кофейни